Beschrijving

MODERNE BEDRIJFSUNIT TE HUUR IN AMSTELVEEN

Bent u op zoek naar een moderne bedrijfsunit met kantoorruimte in Amstelveen? In het bedrijfsverzamelcomplex aan De Loetenweg 12 A t/m 12 H komt één unit beschikbaar. Het betreft een moderne bedrijfsunit met een vrije hoogte van maar liefst 8 meter! Daarnaast treft u op de 1e verdieping een kantoorruimte welke naar uw wensen kan worden aangepast.

**De ruimte is niet geschikt voor autogarage bedrijven**

KENMERKEN VAN DE BEDRIJFSRUIMTE

Het gebouw is in 2022 opgeleverd en heeft zeer goede isolatiewaarden. De elektra-aansluiting (huidige 3*25A) op deze locatie kan op korte termijn verhoogd worden naar 3*80A. 

De kenmerken zijn als volgt:

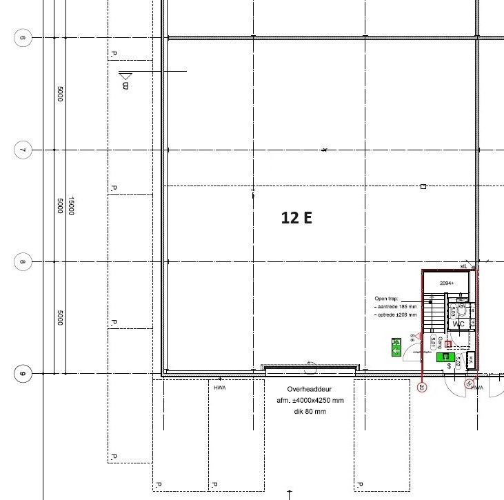
Bedrijfsruimte, begane grond van ca. 214 m2:
- Gladde betonvloer op de begane grond met een draagvermogen van 2.000 kg/m2.
- Krachtstroom.
- Elektrische overheaddeur van maar liefst ca. 4 x 4,2 m (b x h).
- Separate entreedeur met bovenlicht (glas boven de deur).
- Toilet met mechanische afzuiging.
- Led verlichting.

Kantoorruimte, eerste verdieping van ca. 120 m2:
- Airco unit t.b.v. verwarmen en koelen.
- Led verlichting.
- Zonnepanelen (6 stuks) t.b.v. de opwekking van duurzame energie. Het voordeel van de opgewekte energie is voor huurder.
- Laminaatvloer, deze vloer kan ook verwijderd worden zodat de huurder naar eigen wens een vloer kan aanbrengen. 
- Pantry met 3 boven- en onderkasten (inclusief close-in boiler) en mechanische afzuiging.
- Vrij in te delen.

PER 1 SEPTEMBER BESCHIKBAAR

Bent u op zoek naar een ruimte waar u op korte termijn uw intrek in kunt nemen? Dat is hier mogelijk! De ruimte is per 1 september beschikbaar en al gebruiksklaar. U hoeft alleen maar uw bureau hoeft mee te nemen om aan het werk te kunnen gaan.  

LIGGING VAN DE BEDRIJFSUNIT

De locatie is gelegen op bedrijventerrein De Loeten in Amstelveen. Het bedrijventerrein is gesitueerd langs de N201 wat de verbindingsweg is tussen de A2 (Amsterdam - Utrecht) en de A4 (Amsterdam - Den Haag). De bloemenveiling Royal FloraHolland Aalsmeer is om de hoek en Schiphol is nog geen 10 km van de ruimte verwijderd. Hierdoor is de locatie een uitstekende uitvalsbasis voor uw bedrijf! 

IDEAAL VOOR MKB BEDRIJVEN

Deze bedrijfsunit is geschikt voor veel verschillende soorten bedrijven die op zoek zijn naar een modern gebouw met energiezuinige kenmerken en ruimte om te groeien. Maak van De Loetenweg 12 E uw nieuwe vestigingsplek en laat uw bedrijf bloeien!

**Wacht niet langer en plan vandaag nog een bezichtiging in!**

Disclaimer
Het gestelde in deze objectinformatie behelst vrijblijvende en globale informatie met betrekking tot het daarbij genoemde onroerend goed. De beschikbaarheid is indicatief en onder uitdrukkelijk voorbehoud goedkeuring en overleg opdrachtgever. Aan de inhoud van deze informatie kunnen geen rechten worden ontleend. Door aanvaarding van de vermelde condities respectievelijk door het doen van een tegenvoorstel, worden onze opdrachtgevers dan wel ons kantoor niet gebonden.

Kenmerken