| Prijs |
| Type object | Bedrijfshal |
| Perceeloppervlakte | 9.043 m² |
| Totale VVO | 18.451 m² |
| In units vanaf | 2.500 m² |
| Aanvaarding | Direct |
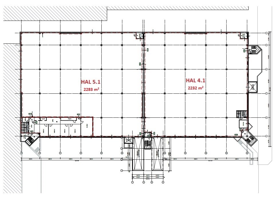
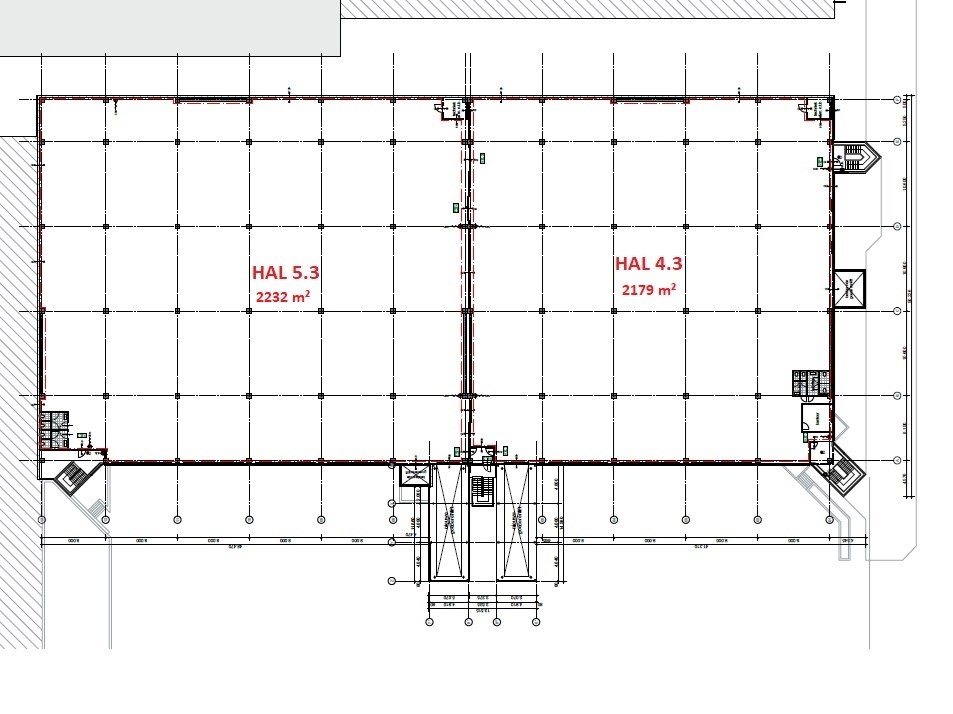
TE HUUR: MULTIFUNCTIONEEL BEDRIJFSGEBOUW OP EEN UNIEKE LOCATIE De Handelsweg 7 in Mijdrecht is een unieke locatie, centraal gelegen in het Groene Hart. Dankzij de ligging tussen de vier grootste steden van Nederland biedt deze locatie uitstekende bereikbaarheid en strategische voordelen. Het bedrijfsgebouw biedt in totaal ca. 18.500 m² vloeroppervlakte, verdeeld over vier bouwlagen. De vrije hoogte varieert tussen 3,4 en 4,4 meter, ideaal voor diverse bedrijfsactiviteiten. De verdiepingen zijn goed te bereiken via goederenliften. Twee XL goederenliften, dit zijn de uitstulpingen van het gebouw in het midden van het laaddock, en daarnaast nog twee standaard goederen liften. Dankzij de brandcompartimentering is het gebouw eenvoudig op te splitsen, mede hierdoor is het geschikt voor verhuur aan meerdere bedrijven en multifunctioneel gebruik. Er zijn al ruimtes op de verdieping beschikbaar vanaf ca. 2.500 m². DE LOCATIE De Handelsweg 7 is gelegen op bedrijventerrein Mijdrecht. Een strategische ligging in het hart van de Randstad, met uitstekende verbindingen naar Amsterdam, Utrecht en Rotterdam. De afstanden vanaf de Handelsweg 7: > Amsterdam (ringweg A10) en Utrecht (ringweg N230) zijn op ca. 20 minuten rijden via de N201 en A2. > Schiphol (goederen plaats) is op ca. 18 minuten rijden via de N201. > Rotterdam (kruispunt ringweg A16-A20) is op ca. 40 minuten rijden via de N201 en A4. KENMERKEN VAN HET GEBOUW Het gebouw kenmerkt zich door de volgende onderdelen: - 14 laaddocks elektrisch bediend; - 2 standaard goederenliften; - 2 XL goederenliften; - Vrije hoogte van ca. 3,4 meter tot en met 4,4 meter; - Betonvloeren voorzien van een epoxy coating waardoor het stofvrij is en het geschikt maakt voor voor vele soorten goederen. RENOVATIE EN DUURZAAMHEID Het gebouw is recent volledig gerenoveerd en voldoet aan de duurzaamheidsnormen van vandaag. Belangrijke verbeteringen omvatten: + Nieuwe gevelbekleding voorzien van 100 mm PIR-isolatie (Rc-waarde van 4,6); + Nieuwe elektrische overheaddeuren en laaddockshelters; + Nieuwe aluminium kozijnen met HR++ beglazing. + Twee nieuwe XL-goederenliften met een draagvermogen van maar liefst 5.000 kg per lift, gebaseerd op de inhoud van een vrachtwagen; + Nieuwe LED-verlichting met bewegingssensoren; + Gedeeltelijk vernieuwde brandmeldinstallatie; + Renovatie van de toiletten in het rechterdeel van het gebouw; BESCHIKBAARHEID UNITS De rechterhelft van het gebouw (Hal 4.0 t/m 4.3) is op dit moment verhuurd. Dit betreft ca. 8.732 m² aan bedrijfs- en kantoorruimte en is per direct beschikbaar. De linkerhelft van het gebouw (Hal 5.0 t/m 5.3), met ca. 9.720 m² aan bedrijfs- en kantoorruimte, komt binnenkort beschikbaar. De huurprijs hiervoor bedraagt € 37,50 per m² per jaar, exclusief servicekosten en btw. Bij deze huurprijs is uitgegaan van een 5 (vijf) jarige huurovereenkomst. De uiteindelijke huurprijs is afhankelijk van: - De huurtermijn; - Eventuele huurders wensen. **Bent u op zoek naar het huren van een kleiner gedeelte? We vernemen dit graag zodat we naar de mogelijkheden kunnen kijken.** Geschikte toepassingen zijn bijvoorbeeld: > Verhuur aan logistieke en/of handelsbedrijven; > Verhuur aan een concept zoals storageboxen, stalling van campers, caravans of luxe auto’s. Een strategisch gelegen, volledig gerenoveerd bedrijfsgebouw met uitstekende mogelijkheden en hoge duurzaamheidsstandaarden. Neem contact met ons op voor meer informatie of om een bezichtiging te plannen. BESTEMMINGSPLAN De locatie valt onder het bestemmingsplan ‘Bedrijventerreinen Mijdrecht en Vinkeveen’. Het perceel is bestemd voor bedrijven tot en met categorie 4.2. Dit is een zeer ruime bestemming en maakt het object geschikt voor een diversiteit aan bedrijven. HUURVOORWAARDEN Waar dient u als huurder rekening mee te houden bij het huren van een bedrijfsruimte: - Bovengenoemde huurprijzen zijn voor de standaard situatie. Indien u aanvullende wensen of eisen heeft, kan dit de huurprijs verhogen. - Huurtermijn: 3 (drie) of 5 (vijf) jaar met een automatische verlenging van telkens 3 (drie) of 5 (vijf) jaar. Bent u op zoek naar afwijkende huurtermijnen? Dan vernemen wij het graag. - Waarborgsom: 3 (drie) bruto maandverplichtingen, te weten een bedrag ter grootte van 3 (drie) maanden huur plus servicekosten en de daarover belastte btw. - Opzegtermijn: afhankelijk van de lengte van de huurtermijn. - Huurprijsaanpassing: Jaarlijkse verhoging, voor het eerst een jaar na ingangsdatum van het huurcontract. Dit op basis van de wijziging van het maandprijsindexcijfer volgens de consumentenprijsindex (CPI) “alle huishoudens” (2015 = 100), gepubliceerd door het Centraal Bureau voor de statistiek (CBS). ZIEN WIJ U BINNENKORT OP LOCATIE? Bent u overtuigd van de mogelijkheden die deze locatie te bieden heeft? Neem direct contact met ons op voor het inplannen van een afspraak! Sluit deze ruimte niet helemaal aan op uw wensen en/of eisen? Neem dan contact met ons op. Wij denken graag met u mee over mogelijke aanpassingen en/of een andere geschikte locatie. Disclaimer Het gestelde in deze objectinformatie behelst vrijblijvende en globale informatie met betrekking tot het daarbij genoemde onroerend goed. De beschikbaarheid is indicatief en onder uitdrukkelijk voorbehoud goedkeuring en overleg opdrachtgever. Aan de inhoud van deze informatie kunnen geen rechten worden ontleend. Door aanvaarding van de vermelde condities respectievelijk door het doen van een tegenvoorstel, worden onze opdrachtgevers dan wel ons kantoor niet gebonden. Onze aansprakelijkheid is in alle gevallen beperkt tot het bedrag dat in het betreffende geval wordt uitgekeerd door onze beroepsaansprakelijkheidsverzekering.
| Referentienummer | 00033 |
| Aanvaarding | Direct |
| Aangeboden sinds | Dinsdag 17 december 2024 |
| Laatste wijziging | Vrijdag 20 februari 2026 |
| Type object | Bedrijfshal |
| Soort bouw | Bestaande bouw |
| Bouwperiode | 1989 |
| Perceeloppervlakte | 9.043 m² |
| VVO | 18.451 m² |
| In units vanaf | 2.500 m² |
| Vrije hoogte | 3,4 m. |
| Ligging | Bedrijventerrein Buiten bebouwde kom Dichtbij openbaar vervoer Industrieterrein Nabij snelweg Vrij uitzicht |
| Lokale voorzieningen | Winkel binnen 500 meter Supermarkt binnen 500 meter |
| Bereikbaarheid | Bushalte binnen 500 meter Afrit van de snelweg op 1000 meter tot 1500 meter |
| Uitrusting | Betonvloer Heater Krachtstroom Loading docks Overheaddeuren Pantry Toilet |