| Prijs | € 9.750.000,- k.k. |
| Type object | Bedrijfshal |
| Perceeloppervlakte | 9.043 m² |
| Totale VVO | 18.452 m² |
| In units vanaf | 9.719 m² |
| Aanvaarding | Direct |
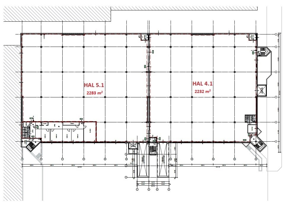
TE KOOP: MULTIFUNCTIONEEL BEDRIJFSGEBOUW OP EEN UNIEKE LOCATIE De Handelsweg 7 in Mijdrecht is een unieke locatie, centraal gelegen in het Groene Hart. Dankzij de ligging tussen de vier grootste steden van Nederland biedt deze locatie uitstekende bereikbaarheid en strategische voordelen. Het bedrijfsgebouw biedt in totaal ca. 18.500 m² vloeroppervlakte, verdeeld over vier bouwlagen. De vrije hoogte varieert tussen 3,4 en 4,4 meter, ideaal voor diverse bedrijfsactiviteiten. Dankzij de brandcompartimentering is het gebouw eenvoudig op te splitsen, waardoor het geschikt is voor multifunctioneel gebruik. De locatie is ideaal voor een eigenaar-gebruiker die een deel van het gebouw zelf wil benutten en de rest wil verhuren om financieringskosten te dekken. DE LOCATIE De Handelsweg 7 is gelegen op bedrijventerrein Mijdrecht. Een strategische ligging in het hart van de Randstad, met uitstekende verbindingen naar Amsterdam, Utrecht en Rotterdam. De afstanden vanaf de Handelsweg 7: > Amsterdam (ringweg A10) en Utrecht (ringweg N230) zijn op ca. 20 minuten rijden via de N201 en A2. > Schiphol (goederen plaats) is op ca. 18 minuten rijden via de N201. > Rotterdam (kruispunt ringweg A16-A20) is op ca. 40 minuten rijden via de N201 en A4. KENMERKEN VAN HET GEBOUW Het gebouw kenmerkt zich door de volgende onderdelen: - 14 laaddocks elektrisch bediend; - 2 standaard goederenliften; - 2 XL goederenliften; - Vrije hoogte van ca. 3,4 meter tot en met 4,4 meter; - Betonvloeren voorzien van een epoxy coating waardoor het stofvrij is en het geschikt maakt voor voor vele soorten goederen. RENOVATIES EN DUURZAAMHEID Het gebouw is recent volledig gerenoveerd en voldoet aan de duurzaamheidsnormen van 2024-2025. Belangrijke verbeteringen omvatten: - Nieuwe gevelbekleding voorzien van 100 mm PIR-isolatie (Rc-waarde van 4,6); - Nieuwe elektrische overheaddeuren en laaddockshelters; - Nieuwe aluminium kozijnen met dubbel glas. Bovendien worden verdere verbeteringen uitgevoerd, voor zover nog niet gereed: - Twee nieuwe XL-goederenliften met een draagvermogen van maar liefst 5.000 kg per lift, gebaseerd op de inhoud van een vrachtwagen; - Nieuwe LED-verlichting met bewegingssensoren; - Gedeeltelijk vernieuwde brandmeldinstallatie; - Renovatie van de toiletten in het rechterdeel; - In het linkerdeel wordt het overtollige deel van de kantoren en kantine verwijderd (tenzij koper dit niet wenst). De dakbedekking is in oktober 2021 geïnspecteerd waar de resterende levensduur heeft ingeschat op 15 jaar. Voor niet-gespecificeerde onderdelen wordt het object geleverd zoals het is (as is, where is), met potentie voor eigen aanpassingen. HUURINKOMSTEN De rechterhelft van het gebouw (Hal 4.0 t/m 4.3) is momenteel verhuurd, met een jaarlijkse huurstroom van circa € 538.000 exclusief btw en servicekosten. Verdere details over het huurcontract is op aanvraag beschikbaar. De linkerhelft van het gebouw (Hal 5.0 t/m 5.3), met ca. 9.720 m² aan bedrijfs- en kantoorruimte, wordt na renovatie beschikbaar voor verhuur of eigen gebruik. Geschikte toepassingen zijn bijvoorbeeld: > Verhuur aan logistieke en/of handelsbedrijven; > Verhuur aan een concept zoals storageboxen, stalling van campers, caravans of luxe auto’s. Bij volledige verhuur wordt een totale huurstroom van circa € 1.100.000 exclusief btw en servicekosten verwacht. Een strategisch gelegen, volledig gerenoveerd bedrijfsgebouw met uitstekende verhuurmogelijkheden en hoge duurzaamheidsstandaarden. Neem contact met ons op voor meer informatie of om een bezichtiging te plannen. LEVERDATUM In overleg. Op korte termijn mogelijk indien wens van koper. KADASTRALE GEGEVENS De totale grootte betreft 9.043 m² met adres Handelsweg 7+7a te Mijdrecht. Dit bestaat uit de kadastrale percelen Mijdrecht sectie B nummers 3135, 3258, 3259, 3261, 3263, 3273, 3276 en 3238. BESTEMMINGSPLAN De locatie valt onder het bestemmingsplan ‘Bedrijventerreinen Mijdrecht en Vinkeveen’. Het perceel is bestemd voor bedrijven tot en met categorie 4.2. Dit is een zeer ruime bestemming en maakt het object geschikt voor een diversiteit aan bedrijven. Disclaimer Het gestelde in deze objectinformatie behelst vrijblijvende en globale informatie met betrekking tot het daarbij genoemde onroerend goed. De beschikbaarheid is indicatief en onder uitdrukkelijk voorbehoud goedkeuring en overleg opdrachtgever. Aan de inhoud van deze informatie kunnen geen rechten worden ontleend. Door aanvaarding van de vermelde condities respectievelijk door het doen van een tegenvoorstel, worden onze opdrachtgevers dan wel ons kantoor niet gebonden. Onze aansprakelijkheid is in alle gevallen beperkt tot het bedrag dat in het betreffende geval wordt uitgekeerd door onze beroepsaansprakelijkheidsverzekering.
| Referentienummer | 00034 |
| Vraagprijs | € 9.750.000,- k.k. |
| Aanvaarding | Direct |
| Aangeboden sinds | Donderdag 5 december 2024 |
| Laatste wijziging | Maandag 24 maart 2025 |
| Type object | Bedrijfshal |
| Soort bouw | Bestaande bouw |
| Bouwperiode | 1989 |
| Perceeloppervlakte | 9.043 m² |
| VVO | 18.452 m² |
| In units vanaf | 9.719 m² |
| Vrije hoogte | 3,4 m. |
| Ligging | Bedrijventerrein Buiten bebouwde kom Dichtbij openbaar vervoer Industrieterrein Nabij snelweg Vrij uitzicht |
| Uitrusting | Betonvloer Heater Krachtstroom Loading docks Overheaddeuren Pantry Toilet |
| Kadastrale aanduiding |