Beschrijving
FUNCTIONELE KANTOORRUIMTES TE HUUR IN UTRECHT
Bent u op zoek naar een functionele kantoorruimte in Utrecht? Op bedrijventerrein Overvecht staat op de hoek van de Sint Laurensdreef en Nevadadreef het bruisende bedrijvenverzamelgebouw.
Op de eerste verdieping van het gebouw bieden we kantoorruimtes aan. Het complex kent twee kantoorgedeeltes, de Nevadadreef 69B en 69D. Ieder gedeelte bestaat uit diverse kantoorunits, met verschillende afmetingen en gemeenschappelijk gebruik van diverse voorzieningen. De kantoorunits zijn licht, efficiënt in te delen en geschikt voor uiteenlopende bedrijven die zich willen vestigen op een bedrijventerrein wat zich kenmerkt door de zeer goede bereikbaarheid. Denk hierbij bijvoorbeeld aan ruimte voor een creative agency, callcenter consultancybedrijven en andere soortgelijke dienstverlenende organisaties.
Wegens de diverse unitgroottes is de ruimte makkelijk naar uw behoefte in te delen. Tevens kunnen units gemakkelijk aan elkaar geschakeld worden om tot de juiste oppervlakte te komen. Wij denken hierin graag met u mee!
VOORZIENINGEN VAN DE NEVADADREEF 69B & 69D
Hoewel beide huisnummers los van elkaar zijn en over een eigen entree beschikken, hebben de ruimtes de volgende kenmerken:
- Ruime hoofdentree met trap naar de eerste verdieping.
- Toiletgroep mannen en vrouwen.
- Units in diverse afmetingen.
- Pantry.
- CV installatie.
- Systeemplafond met LED verlichting.
- Te openen ramen.
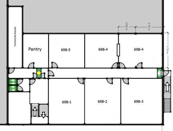
BESCHIKBARE UNITS
Nr. 69B-2
- Kantoorruimte ca. 54 m² incl. algemene ruimte
- Huurprijs: € 450,- per maand excl. btw
- Servicekosten: € 180,- excl. btw
Nr. 69D-2
- Kantoorruimte ca. 50 m² incl. algemene ruimte
- Huurprijs: € 520,- per maand excl. btw
- Servicekosten: € 170,- excl. btw
Nr. 69D-4
- Kantoorruimte ca. 38 m² incl. algemene ruimte
- Huurprijs: € 400,- per maand excl. btw
- Servicekosten: € 130,- excl. btw
Nr. 69D-6
- Kantoorruimte ca. 50 m² incl. algemene ruimte
- Huurprijs: € 520,- per maand excl. btw
- Servicekosten: € 170,- excl. btw
Nr. 69D-7
- Kantoorruimte ca. 50 m² incl. algemene ruimte
- Huurprijs: € 520,- per maand excl. btw
- Servicekosten: € 170,- excl. btw
Nr. 69D-8
- Kantoorruimte ca. 75 m² incl. algemene ruimte
- Huurprijs: € 780,- per maand excl. btw
- Servicekosten: € 180,- excl. btw
Nr. 69B-2
- Kantoorruimte ca. 54 m² incl. algemene ruimte
- Huurprijs: € 450,- per maand excl. btw
- Servicekosten: € 250,- excl. btw
Zit de oppervlakte waar u naar op zoek bent er niet tussen of voldoet de ruimte niet geheel aan uw wensen, laat het ons weten. Wij denken graag met u mee!
LIGGING VAN DE LOCATIE
De locatie is gelegen is op een centrale locatie met uitstekende bereikbaarheid met zowel auto als openbaar vervoer.
Deze ligging van het object is een van de sterke punten van deze locatie.
> Per auto: het gebouw is uitstekend bereikbaar dankzij de directe aansluiting op de belangrijkste snelwegen van de regio vanaf de Rijksweg A2 en A7 via de N230 richting bedrijventerrein Overvecht. Verder beschikt deze locatie over ruime parkeergelegenheid en 24/7 toegang.
> Per openbaar vervoer: buslijn 1 richting Overvecht-Noord stopt bij halte Nebraskadreef, terwijl buslijn 3 richting Zuilen bij halte Franciscusdreef kan worden genomen vanaf tram/bushalte CS Centrumzijde Utrecht. Hierdoor is de locatie voor zowel medewerkers als bezoekers uitstekend bereikbaar.
HUURVOORWAARDEN
U dient met de volgende voorwaarden rekening te houden bij het huren van een kantoorruimte aan de Nevadadreef in Utrecht:
- Bovengenoemde huurprijzen zijn voor de bestaande situatie. Indien u aanvullende wensen of eisen heeft, kan dit invloed hebben op huurprijs.
- Voorschot servicekosten: het voorschot servicekosten bedraagt € 35,- per m² per jaar, excl. btw. Dit is een voorschot en wordt periodiek verrekend naar daadwerkelijk gebruik. De servicekosten hebben betrekking op een voorschot voor gas/water/elektra, onderhoud van de bij het pand behorende installaties, groen- terrein- en dakonderhoud, etc.
- Huurtermijn: 3 (drie) of 5 (vijf) jaar met een automatische verlenging van telkens 3 (drie) of 5 (vijf) jaar. Afwijkende termijnen op aanvraag beschikbaar.
- Waarborgsom: 3 (drie) bruto maandverplichtingen, te weten een bedrag ter grootte van 3 (drie) maanden huur plus servicekosten en de daarover belastte btw.
- Opzegtermijn: dit bedraagt temminste 6 (zes) of 12 (twaalf) maanden voor het einde van uw huurtermijn. De opzegtermijn is afhankelijk van de lengte van het huurtermijn.
- Huurprijsaanpassing: Jaarlijkse verhoging, voor het eerst een jaar na ingangsdatum van het huurcontract. Dit op basis van de wijziging van het maandprijsindexcijfer volgens de consumentenprijsindex (CPI) “alle huishoudens” (2015 = 100), gepubliceerd door het Centraal Bureau voor de statistiek (CBS).
Disclaimer
Het gestelde in deze objectinformatie behelst vrijblijvende en globale informatie met betrekking tot het daarbij genoemde onroerend goed. De beschikbaarheid is indicatief en onder uitdrukkelijk voorbehoud goedkeuring en overleg opdrachtgever. Aan de inhoud van deze informatie kunnen geen rechten worden ontleend. Door aanvaarding van de vermelde condities respectievelijk door het doen van een tegenvoorstel, worden onze opdrachtgevers dan wel ons kantoor niet gebonden.